Ce bien vous intéresse ?
Contactez-nous !
Un appartement idéal, alliant confort, fonctionnalité et cadre de vie agréable.
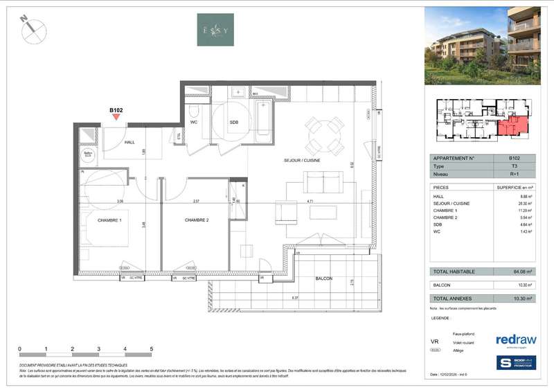
Situé en rez-de-jardin du programme ESSY, à Metz Tessy, découvrez ce charmant T3 de 64m², parfaitement agencé et bénéficiant d'une belle exposition sud.
Un appartement fonctionnel et lumineux :
- Une pièce de vie agréable ouverte sur un balcon de 10m², idéal pour profiter de beaux jours
- 2 chambres confortables
- Une salle de bain
- Un WC indépendant
En annexe : une cave et la possibilité d'acquérir un garage et/ou une place de parking privative
Un cadre de vie pratique et recherché, ce bien bénéficie d'un environnement calme tout en restant proche des commodités essentielles. La commune offre de nombreux commerces de proximité (boulangeries, supermarchés, services), ainsi que des établissements scolaires accessibles rapidement.
Côté mobilité, Metz Tessy est idéalement sur l'axe Annecy / Genève, avec des solutions de transport facilitant les déplacements quotidiens.
Un bien idéal pour un premier achat, un investissement locatif ou un pied-à-terre de qualité.
Contactez-nous dès maintenant !
Prix de vente : 390 000 € - Honoraires charge vendeur


Les informations sur les risques auxquels ce bien est exposé sont disponibles sur le site Géorisques : www.georisques.gouv.fr